Provisionsfrei für Käufer°°° Traumgrundstück mit schönem Haus°°°
295.000,00 EUR Sauensiek / Wiegersen | Einfamilienhaus | 122,00m² | 4 ZimmerBeim Betreten dieses Einfamilienhauses aus dem Jahr 1978 werden Sie sofort von der ruhigen Lage und dem großzügigen Garten begeistert sein. Das 800 m² große Grundstück bietet Ihnen eine grüne Oase der Entspannung – ideal, um die Natur zu genießen und zur Ruhe zu kommen.
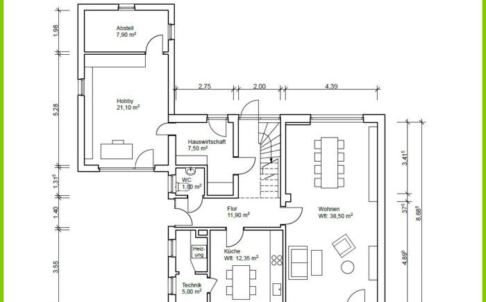
Vor dem einladenden Hauseingang stehen Ihnen komfortable Parkmöglichkeiten zur Verfügung. Die ehemals als Garage genutzte Fläche wurde in einen praktischen Hobbyraum umgewandelt, der allerdings nicht zur Wohnfläche zählt, man könnte Ihn jedoch zu einem vollwertigen Wohnraum umwandeln und genehmigen lassen. Ein Rückbau zur Garage ist bei Bedarf auch problemlos möglich.
Im Inneren erwartet Sie eine Wohnfläche von 122 m², verteilt auf vier Zimmer. Vom Eingangsbereich aus gelangen Sie direkt in das helle, großzügige Wohnzimmer, das dank großer Fenster viel Tageslicht erhält und einen wunderbaren Blick in den Garten freigibt. Von hier aus betreten Sie zudem eine der beiden großen Terrassen des Hauses.
Die angrenzende Küche ist funktional geschnitten und bietet ausreichend Platz für Kochen und gemeinsames Essen. Ein praktischer Abstellraum schließt sich direkt an, dahinter befindet sich der Heizungsraum mit der modernen Gas-Brennwert-Heizungsanlage aus dem Jahr 2021.
Im Obergeschoss liegen drei Schlafräume: ein sehr großes Elternschlafzimmer sowie zwei Kinderzimmer. Ebenfalls auf dieser Etage befindet sich das geräumige Badezimmer, das – wie einige andere Bereiche des Hauses – von Renovierungs- beziehungsweise Sanierungsmaßnahmen profitieren könnte, um heutigen Komfortansprüchen zu entsprechen.
Das Highlight ist der eingewachsene Garten, der viel Platz zum Entspannen und Gestalten bietet. Die überdachte Terrasse hinter dem Haus ermöglicht es zudem, auch bei schlechtem Wetter Zeit im Freien zu verbringen. Die beiden zum Haus gehörenden Schuppen sind allerdings stark renovierungsbedürftig oder sollten gegebenenfalls erneuert werden.
Insgesamt präsentiert sich dieses Haus als ein ideales Zuhause, das zwar einige energetische und gestalterische Modernisierungen benötigt, aber großes Potenzial bietet – perfekt, um Ihre persönlichen Wohnideen und Vorstellungen zu verwirklichen.
Wiegersen ist ein Ortsteil der Gemeinde Sauensiek in Niedersachsen und liegt im Süden des Landkreises Stade, in der Samtgemeinde Apensen mit ca .600 Einwohnern.
In Wiegersen gibt es eine Busverbindung nach Ahlerstedt, Sauensiek, Zeven, Apensen, Bxtehude und Harsefeld.
Der nächste Bahnhof befindet sich in Apensen, hier fährt die EVB Buxtehude-Bremerhaven.
In Sauensiek hat man Anschluss an die Landstraße 130, die nach Sittensen an die Bundesautobahn 1 (A 1) führt.
Im Wiegerser Forst und den umliegenden Moorlandschaften kann man schöne Spaziergänge und Radtouren machen.
Im Nachbarort Sauensiek steht Ihnen ein Naturbad zur Verfügung.
In den Ortschaften Beckdorf, Apensen und Ahlerstedt findet man Geschäfte für den täglichen Bedarf.
Kindergärten für die Kleinsten befinden sich in Sauensiek und Revenahe, die Grundschule ist direkt vor Ort und die weiterführenden Schulen sind in Apensen und Harsefeld zu finden.
– hier finden Sie einen Videorungang durch da Haus
https://www.youtube.com/shorts/oHTcXF1r_jg
neue Heizungsanlage 2021
– großes Grundstück ( hinten eingezäunt)
– 2 Terrassen davon eine überdacht
– Gäste-WC
– große Wohnküche mit Speisekammer
– ruhige Seitenstrasse
| Angebots-ID: | LI899 |
| Kaufpreis: | 295.000,00 EUR |
| Zimmer: | 4 |
| Schlafzimmer: | 3 |
| Badezimmer: | 1 |
| Wohnfläche: | 122,00 m² |
| Grundstücksfläche: | 800,00 m² |
| Nutzfläche: | 25,00 m² |
| Gesamtfläche: | 146,00 m² |
| Baujahr: | 1978 |
| Objektzustand: | gepflegt |
| Heizungsart: | Zentralheizung |
| Befeuerungsart: | Gas |
| Wert des Endenergiebedarfs: | 109,90 kWh/(m²*a) |
| Art des Energieausweises: | Verbrauch |
| Energieeffizienzklasse: | D |
| Sonstige Angaben: | Es liegt ein Energieverbrauchsausweis vor. Dieser ist gültig bis 12.12.2034. Endenergieverbrauch beträgt 109.90 kwh/(m²*a). Wesentlicher Energieträger der Heizung ist Gas. Das Baujahr des Objekts lt. Energieausweis ist 2021. Die Energieeffizienzklasse ist D. Anfragen an: Laage Immobilien Buxtehuderstrasse 15 21641 Apensen Telefon: 04167-6997506 E-Mail:laage@laage-immobilien.de Web: www.laage-immobilien.de Vertretungsberechtigter: Yvonne Laage Berufsaufsichtsbehörde : IHK Stade Am Schäferstieg 2 ,21680 Stade Handelsregister: Stade Ust.-IdNr: DE217276976 Hinweis: Wir weisen höflich darauf hin, dass die hier gemachten Angaben ausschließlich auf den uns vom Verkäufer übermittelten Unterlagen und Daten basieren. Für die Richtigkeit und Vollständigkeit können wir keine Haftung übernehmen. Dieses Exposé ist nur für Sie persönlich bestimmt. Eine Weitergabe an Dritte ist an unsere ausdrückliche Zustimmung gebunden und unterbindet nicht unserem Provisionsanspruch bei Zustandekommen eines Vertrages. Alle Gespräche sind über unser Büro zuführen. Bei Zuwiderhandlung behalten wir uns Schadenersatz bis zur Höhe der Provisionsansprüche ausdrücklich vor. Zwischenverkauf ist nicht ausgeschlossen. Wir sind als Nachweis- und Vermittlungsmakler tätig und berechtigt auch für den anderen Vertragspartner tätig zu werden. Auftraggeber ist sowohl der ein Objekt Anbietende, als auch der ein Objekt Suchende Interessent. nt. |
| Käuferprovision: | Provisionsfrei für Käufer |
| Anzahl Außenstellplätze: | 2 |
| Stellplätze: | 2 |
| Terrassen: | 2 |
Die genaue Adresse teilen wir Ihnen auf Anfrage gerne mit.
21644 Sauensiek / Wiegersen
Deutschland




























