°°° einfach zum wohlfühlen°°°
198.000,00 EUR Stade | DG-Wohnung | 77,68m² | 2 ZimmerDiese charmante Dachgeschosswohnung mit 78m² Wohnfläche bietet ein ideales Zuhause für Singles und Paare, die modern und dennoch ruhig wohnen möchten. Die Wohnung befindet sich in einem sehr schönen1938 erbauten und kernsanierten Gebäude, das auch energetisch auf den neuesten Stand gebracht wurde. Mit einer Energieeffizienzklasse D ist sie nicht nur stilvoll, sondern auch umweltbewusst.
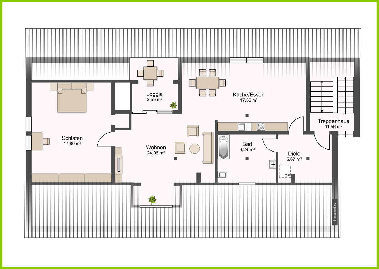
Beim Betreten der Wohnung gelangt man in einen einladenden Flur, der direkt in den offenen Wohnbereich führt. Die hochwertige Einbauküche ist perfekt in den Raum integriert und bietet viel Platz zum Kochen und Genießen. Der angrenzende Essbereich ist ideal für gemütliche Abende mit Freunden.
Das große Badezimmer ist modern gestaltet und bietet sowohl eine Badewanne als auch eine Dusche. Das Schlafzimmer ist geräumig und verfügt über einen großen und tiefen Einbauschrank, der ausreichend Stauraum bietet.
Ein besonderes Highlight ist die nach Westen ausgerichtete Loggia, die zu entspannten Stunden im Freien einlädt. Der Ausblick über die Dächer der Umgebung ist atemberaubend und bietet eine perfekte Kulisse für den Feierabend.
Die Wohnung liegt in einer ruhigen und grünen Gegend, die dennoch eine hervorragende Anbindung an die Innenstadt bietet. In der Umgebung finden sich zahlreiche Einkaufsmöglichkeiten, Cafés und Parks, die zum Verweilen einladen.
Diese Wohnung kombiniert historischen Charme mit modernem Komfort und ist der perfekte Rückzugsort für alle, die das Besondere suchen.
Willkommen in Stade, einer charmanten Stadt, die sowohl historische als auch moderne Annehmlichkeiten bietet. Diese Immobilie liegt in einer lebendigen Gegend, die ideal für Menschen ist, die das Stadtleben genießen möchten.
Die Wohnung liegt in dem schönen Stadtteil Ottenbeck, der naturnah und dennoch zentral liegt.
Die Anbindung an den öffentlichen Nahverkehr ist hervorragend, sodass Sie schnell und unkompliziert in die Innenstadt oder in andere Stadtteile gelangen können. Die Autobahn ist ebenfalls in kurzer Fahrzeit erreichbar, was Ihnen Flexibilität für Wochenendausflüge bietet. Der nächste Flughafen ist etwa eine Stunde entfernt, was die Lage auch für Vielreisende attraktiv macht.
Stade selbst ist bekannt für seine malerische Altstadt und die Nähe zur Elbe, die zu Spaziergängen und Erkundungen einlädt. Die Region bietet eine ausgewogene Mischung aus urbanem Flair und naturnaher Umgebung, die zum Entspannen und Genießen einlädt.
– Einbauküche inkl. Geräten
– große Loggia mit tollem Blick und Fliegengitter
– großzügiges Badezimmer
– großer und tiefer Einbaukleiderschrank
– Badezimmer mit Badewanne
– Garage und Stellplatz im Freien
– Kellerraum
– Haus modernisiert, Heizung aus 2023
– großer Einbauschrank Schlafzimmer
| Angebots-ID: | LI890 |
| Kaufpreis: | 198.000,00 EUR |
| Hauskosten: | 406,00 EUR |
| Zimmer: | 2 |
| Schlafzimmer: | 1 |
| Badezimmer: | 1 |
| Wohnfläche: | 77,68 m² |
| Nutzfläche: | 7,04 m² |
| Gesamtfläche: | 84,72 m² |
| Etage: | 3 |
| Etagen: | 3 |
| Baujahr: | 1938 |
| Objektzustand: | modernisiert |
| Heizungsart: | Zentralheizung |
| Befeuerungsart: | Gas |
| Wert des Endenergiebedarfs: | 127,70 kWh/(m²*a) |
| Art des Energieausweises: | Verbrauch |
| Energieeffizienzklasse: | D |
| Sonstige Angaben: | Es liegt ein Energieverbrauchsausweis vor. Dieser ist gültig bis 23.1.2035. Endenergieverbrauch beträgt 127.70 kwh/(m²*a). Wesentlicher Energieträger der Heizung ist Gas. Das Baujahr des Objekts lt. Energieausweis ist 2023. Die Energieeffizienzklasse ist D. Anfragen an: Laage Immobilien Buxtehuder Strasse 15 21641 Apensen Telefon: 04167-6997506 Fax: 040-999 999 769 9 E-Mail:laage@laage-immobilien.de Web: www.laage-immobilien.de Vertretungsberechtigter: Yvonne Laage Berufsaufsichtsbehörde : IHK Stade Am Schäferstieg 2 ,21680 Stade Handelsregister: Stade Ust.-IdNr: DE217276976 Hinweis: Wir weisen höflich darauf hin, dass die hier gemachten Angaben ausschließlich auf den uns vom Verkäufer übermittelten Unterlagen und Daten basieren. Für die Richtigkeit und Vollständigkeit können wir keine Haftung übernehmen. Dieses Exposé ist nur für Sie persönlich bestimmt. Eine Weitergabe an Dritte ist an unsere ausdrückliche Zustimmung gebunden und unterbindet nicht unserem Provisionsanspruch bei Zustandekommen eines Vertrages. Alle Gespräche sind über unser Büro zuführen. Bei Zuwiderhandlung behalten wir uns Schadenersatz bis zur Höhe der Provisionsansprüche ausdrücklich vor. Zwischenverkauf ist nicht ausgeschlossen. Wir sind als Nachweis- und Vermittlungsmakler tätig und berechtigt auch für den anderen Vertragspartner tätig zu werden. Auftraggeber ist sowohl der ein Objekt Anbietende, als auch der ein Objekt Suchende Interessent. |
| Käuferprovision: | 3,5 inkl, MwSt. |
| Anzahl Außenstellplätze: | 2 |
| Anzahl Garagenstellplätze: | 2 |
| Stellplätze: | 2 |
| Balkone: | 1 |
Die genaue Adresse teilen wir Ihnen auf Anfrage gerne mit.
21682 Stade
Deutschland



























