°°° tolle Lage mit großem Haus und großem Grundstück°°°
262.000,00 EUR Heeslingen | Einfamilienhaus | 159,00m² | 5 ZimmerDieses charmante Einfamilienhaus aus dem Jahr 1969 bietet auf einer großzügigen Grundstücksfläche von 1149 m² ein ideales Zuhause für Familien. Mit einer Wohnfläche von 159 m² und insgesamt 5,5 Zimmern präsentiert sich das Haus als geräumig und einladend.
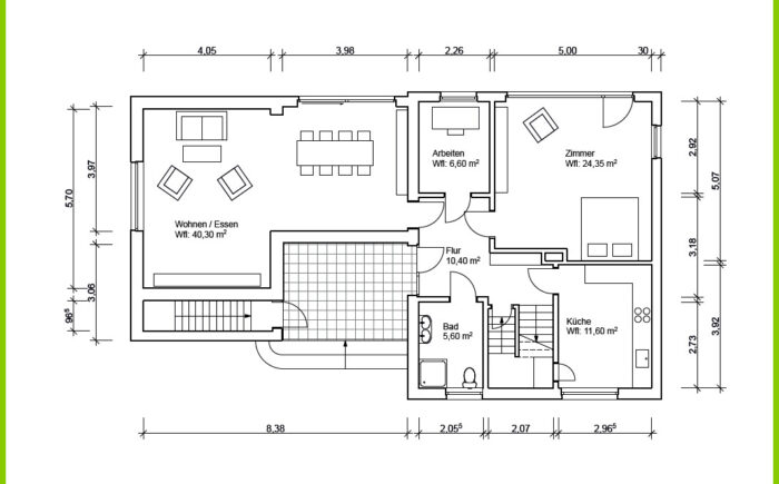
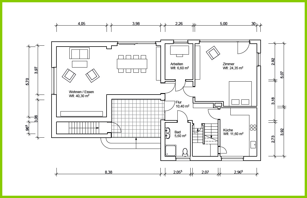
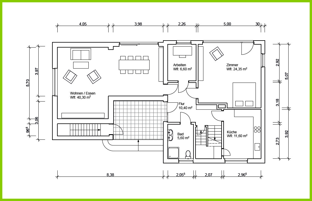
Beim Betreten des Hauses empfängt Sie ein heller Eingangsbereich, der direkt in den Flur führt. Von hier aus gelangen Sie in das großzügige Esszimmer mit dem angrenzenden Wohnbereich das mit großen Fenstern viel Tageslicht bietet und einen herrlichen Blick in den Garten ermöglicht,ideal für gesellige Abende und bietet ausreichend Platz für die ganze Familie.
Die Küche ist funktional gestaltet und bietet auch Platz zum Sitzen für gemütliche Kochabende. Direkt neben der Küche befindet sich noch ein weiteres großes Zimmer, hier könnte man überlegen die Küche zu öffnen. Ein kleines Zimmer daneben wäre ein schönes kleines Arbeitszimmer. Zudem befindet sich im Erdgeschoss noch ein Badezimmer, geräumig jedoch nicht mehr zeitgemaß.
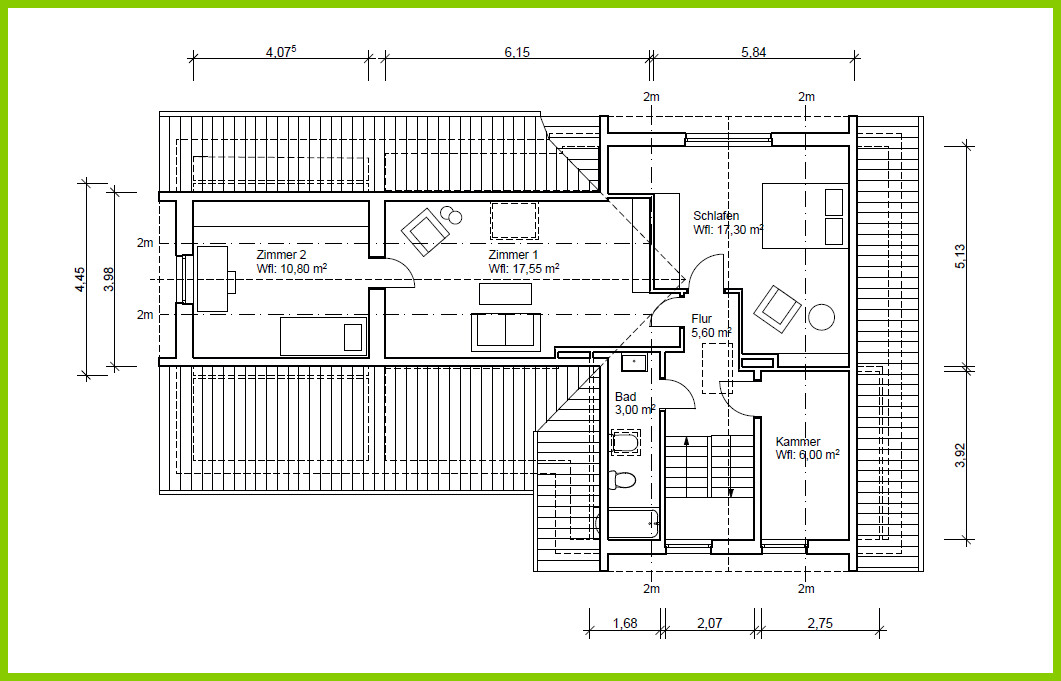
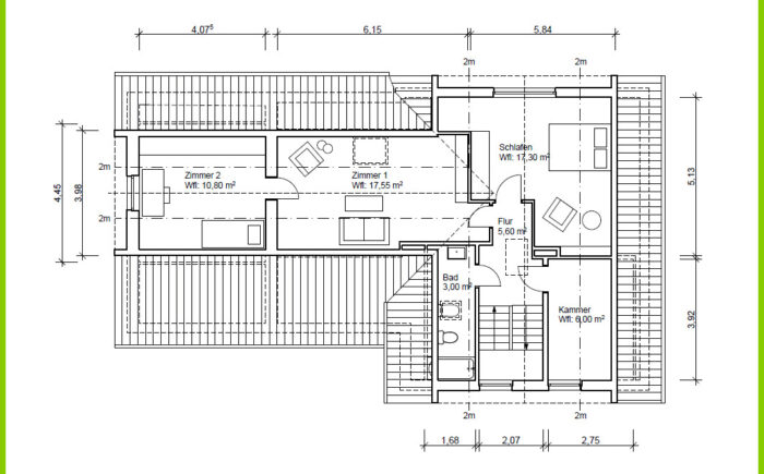
Im Obergeschoss finden sich insgesamt drei Zimmer, von denen eines ein Durchgangszimmer ist, alle haben eine gute Größe, ein weiteres Badzimmer rundet da Obergeschoß ab.
Der weitläufige Garten lädt zum Spielen und Entspannen ein und bietet Kindern viel Platz zum Toben. Eine Terrasse bietet die Möglichkeit, sonnige Tage im Freien zu genießen. Eine Garage auf der Gartenseite sorgt für zusätzlichen Stauraum und Schutz für Ihr Fahrzeug.
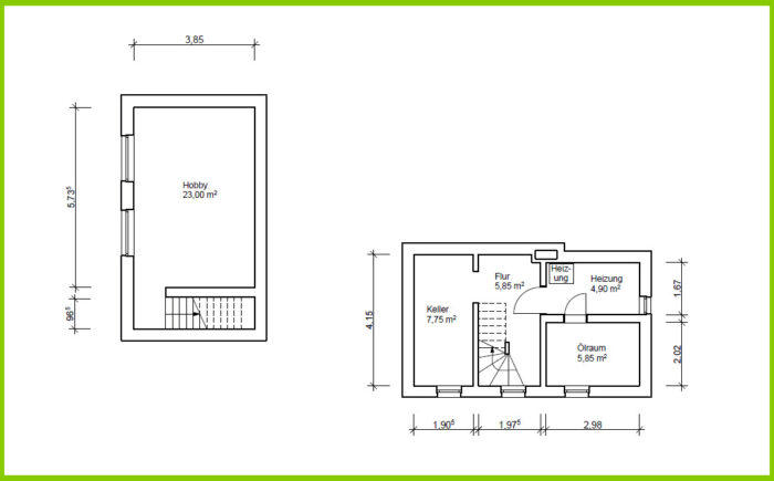
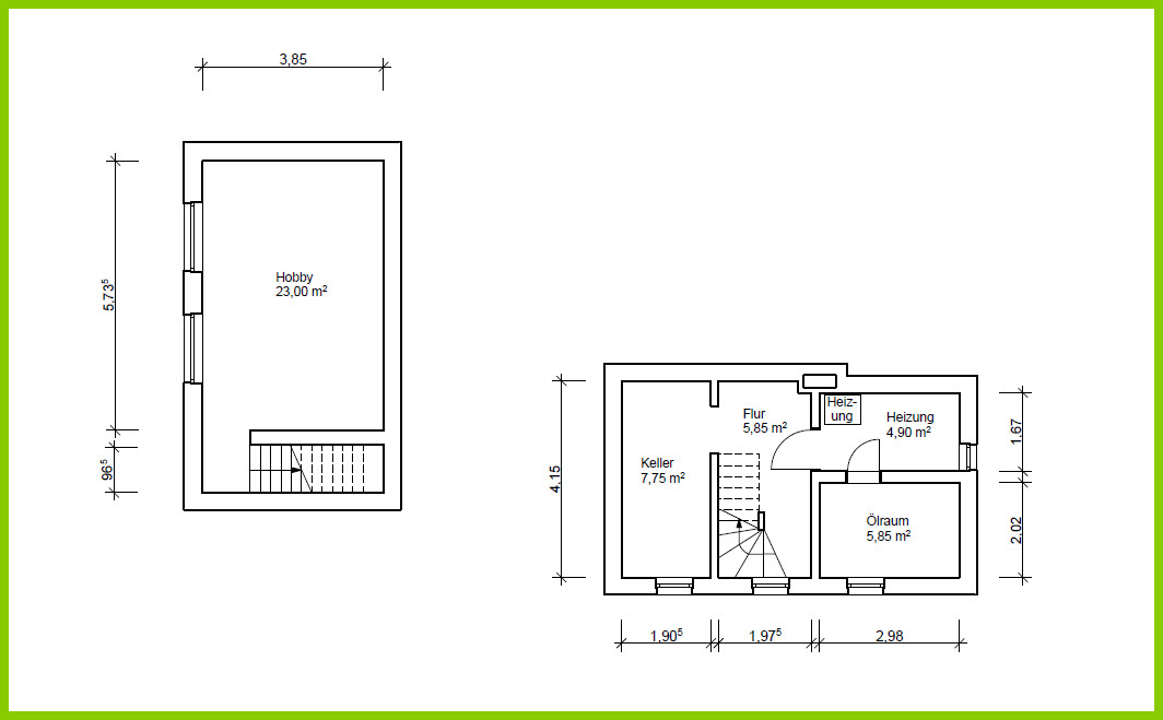
Das Haus ist teilunterkellert, was zusätzlichen Stauraum bietet und vielseitige Nutzungsmöglichkeiten eröffnet. Die ruhige Lage und die Nähe zu Schulen und Kindergärten machen dieses Haus besonders attraktiv für Familien.
Ein ideales Zuhause für alle, die ein großzügiges und gemütliches Wohnumfeld suchen. Wir weisen jedoch darauf hin, dass einiges an Haus gemacht we den muss wie Isolierung des Daches, Fenstererneuerung, Elektrik etc. , um auf einen heutigen Standart zu bringen.
In der idyllischen Gemeinde Heeslingen erwartet Sie ein familienfreundliches Wohnumfeld, das durch seine ruhige und sichere Lage besticht. Die Region ist ideal für Familien mit Kindern, da sie eine Vielzahl an Spielplätzen bietet, die in wenigen Gehminuten erreichbar sind. Ein Spielplatz befindet sich nur etwa 5 Gehminuten entfernt, ein weiterer in etwa 10 Minuten.
Für den täglichen Bedarf stehen Ihnen mehrere Supermärkte zur Verfügung, darunter ein Edeka, der in ca. 10 Minuten zu Fuß erreichbar ist. Die Nähe zu Schulen ist ein weiterer Pluspunkt: Eine Schule befindet sich in etwa 10 Gehminuten Entfernung, was den Schulweg für Ihre Kinder angenehm kurz macht.
Die Anbindung an den öffentlichen Nahverkehr ist ebenfalls hervorragend. Mehrere Bushaltestellen sind in weniger als 10 Minuten zu Fuß erreichbar, was Ihnen und Ihrer Familie Flexibilität und Mobilität bietet. Für entspannte Spaziergänge oder sportliche Aktivitäten laden die nahegelegenen Parks ein, die Sie in etwa 10 Minuten erreichen können.
Heeslingen bietet zudem eine gute medizinische Versorgung mit einem Hausarztzentrum, das in etwa 15 Minuten zu Fuß erreichbar ist. Für kulinarische Abwechslung sorgen verschiedene Restaurants in der Umgebung, darunter das beliebte „Zum Hollengrund“, das nur etwa 10 Gehminuten entfernt liegt.
Die Region zeichnet sich durch eine junge Bevölkerungsstruktur aus, was das Gemeinschaftsgefühl stärkt und für ein lebendiges Umfeld sorgt. Mit einer guten Infrastruktur und einem hohen Anteil an jungen Familien ist Heeslingen der perfekte Ort, um sich niederzulassen und das Familienleben in vollen Zügen zu genießen.
– sehr schönes Grundstück
– zwei Bäder
– teilkeller
– Garage
– großzügiges Wohnzimmer
sehr helles Haus
| Angebots-ID: | LI892 |
| Kaufpreis: | 262.000,00 EUR |
| Zimmer: | 5 |
| Schlafzimmer: | 4 |
| Badezimmer: | 2 |
| Wohnfläche: | 159,00 m² |
| Grundstücksfläche: | 1.149,00 m² |
| Nutzfläche: | 47,00 m² |
| Gesamtfläche: | 206,00 m² |
| Baujahr: | 1969 |
| Objektzustand: | gepflegt |
| Heizungsart: | Zentralheizung |
| Befeuerungsart: | Öl |
| Wert des Endenergiebedarfs: | 314,00 kWh/(m²*a) |
| Art des Energieausweises: | Bedarf |
| Energieeffizienzklasse: | H |
| Sonstige Angaben: | Es liegt ein Energiebedarfsausweis vor. Dieser ist gültig bis 6.10.2035. Endenergiebedarf beträgt 314.00 kwh/(m²*a). Wesentlicher Energieträger der Heizung ist Öl. Das Baujahr des Objekts lt. Energieausweis ist 1998. Die Energieeffizienzklasse ist H. Anfragen an: Laage Immobilien Buxtehuderstrasse 15 21641 Apensen Telefon: 04167-6997506 Fax: 040-999 999 769 9 E-Mail:laage@laage-immobilien.de Web: www.laage-immobilien.de Vertretungsberechtigter: Yvonne Laage Berufsaufsichtsbehörde : IHK Stade Am Schäferstieg 2 ,21680 Stade Handelsregister: Stade Ust.-IdNr: DE217276976 Hinweis: Wir weisen höflich darauf hin, dass die hier gemachten Angaben ausschließlich auf den uns vom Verkäufer übermittelten Unterlagen und Daten basieren. Für die Richtigkeit und Vollständigkeit können wir keine Haftung übernehmen. Dieses Exposé ist nur für Sie persönlich bestimmt. Eine Weitergabe an Dritte ist an unsere ausdrückliche Zustimmung gebunden und unterbindet nicht unserem Provisionsanspruch bei Zustandekommen eines Vertrages. Alle Gespräche sind über unser Büro zuführen. Bei Zuwiderhandlung behalten wir uns Schadenersatz bis zur Höhe der Provisionsansprüche ausdrücklich vor. Zwischenverkauf ist nicht ausgeschlossen. Wir sind als Nachweis- und Vermittlungsmakler tätig und berechtigt auch für den anderen Vertragspartner tätig zu werden. Auftraggeber ist sowohl der ein Objekt Anbietende, als auch der ein Objekt Suchende Interessent. |
| Käuferprovision: | 3,5% inkl. MwSt. |
| Anzahl Garagenstellplätze: | 2 |
| Stellplätze: | 2 |
| Terrassen: | 2 |
Die genaue Adresse teilen wir Ihnen auf Anfrage gerne mit.
27404 Heeslingen
Deutschland


































