RESERVIERT°°° ein einmaliger Blick°°°
385.000,00 EUR Sauensiek / Revenahe | Einfamilienhaus | 117,00m² | 4 ZimmerDieses gepflegte Viebrock-Einfamilienhaus aus dem Jahr 1973 überzeugt durch seine ruhige Lage in einer angenehmen Wohnstraße der Ortschaft Revenahe sowie durch seinen außergewöhnlich guten Gesamtzustand. Das Haus wurde über die Jahre fortlaufend modernisiert und bietet dank seiner durchdachten Raumaufteilung viel Platz für eine Familie.
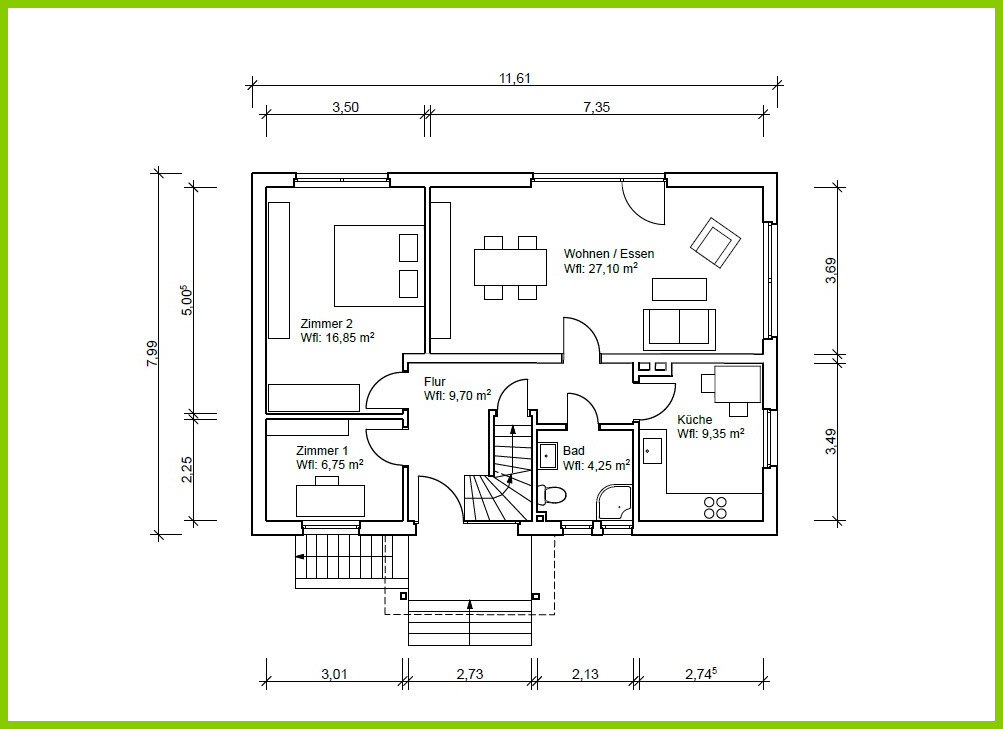
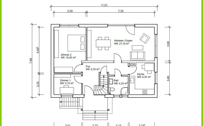
Über die einladende, großzügige Eingangstreppe gelangt man in das Erdgeschoss, das von einem zentralen Flur aus betreten wird. Gleich links befinden sich zwei vielseitig nutzbare Zimmer, ideal als Schlafzimmer, Büro oder Gästezimmer. Geradeaus öffnet sich das großzügige Wohnzimmer, während sich Küche und Bad auf der rechten Seite des Flures befinden.
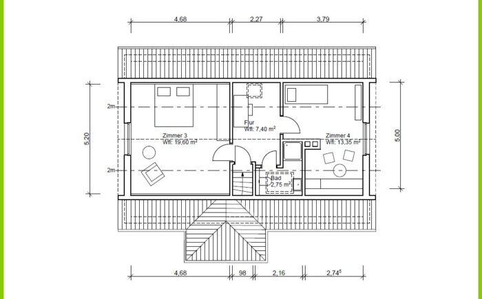
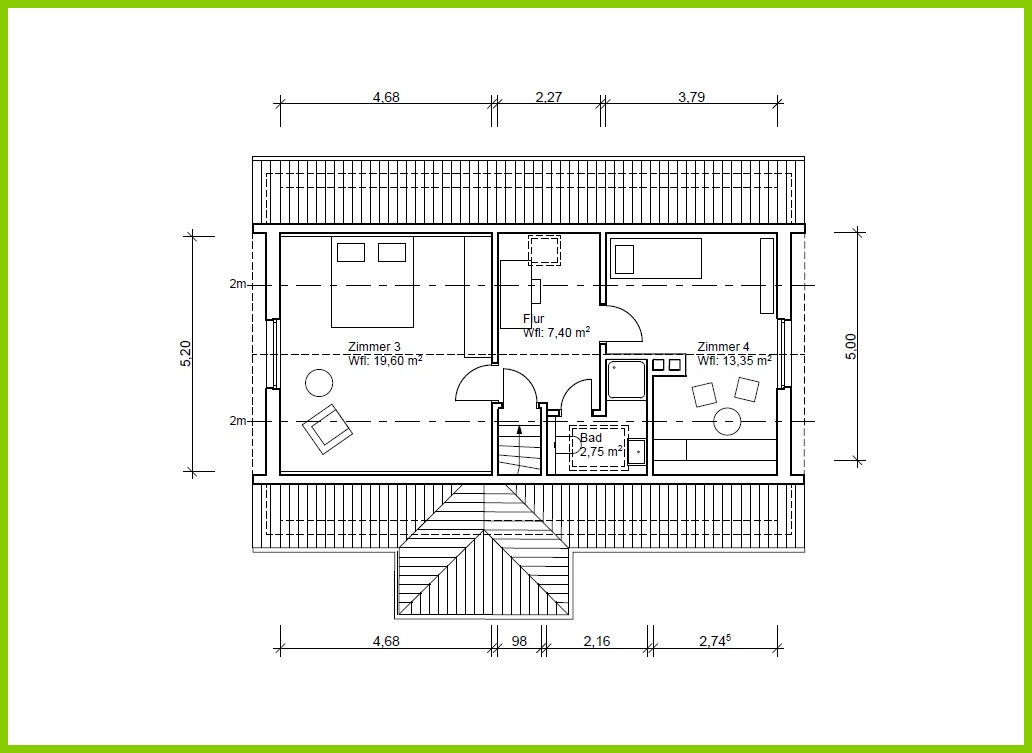
Das Dachgeschoss wurde vollständig ausgebaut und bietet zwei weitere helle Zimmer sowie ein modernes Duschbad. Der zentrale Flur bietet zudem ausreichend Platz für einen kleinen Arbeitsplatz oder eine gemütliche Leseecke.
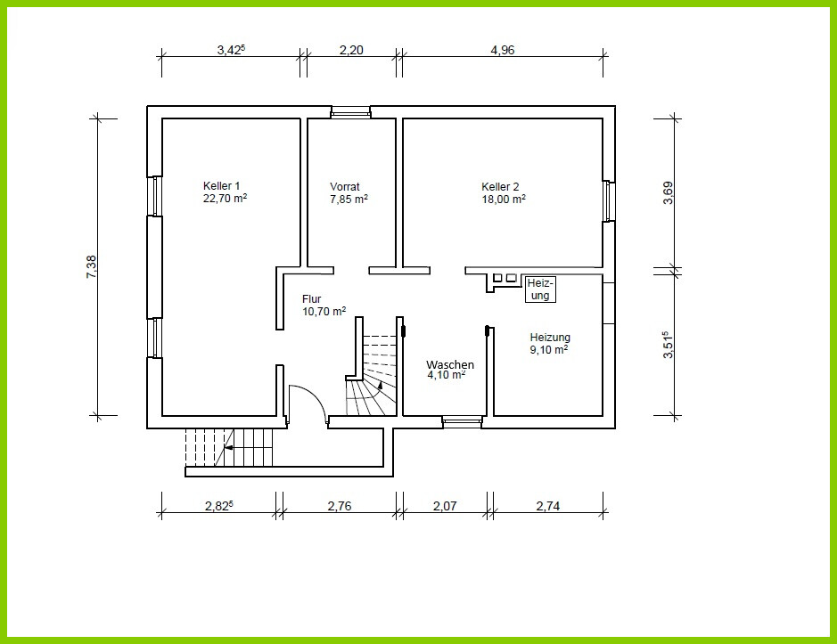
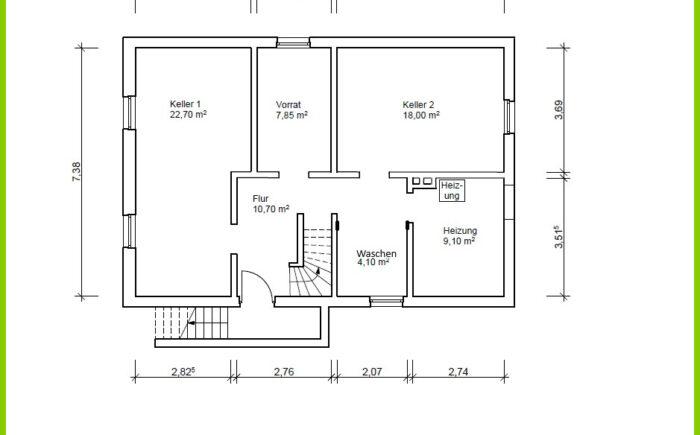
Der Vollkeller präsentiert sich trocken und äußerst gepflegt. Er bietet zwei große und zwei kleinere Abstellräume, einen Heizungsraum sowie einen praktischen Außenzugang zur Straßenseite.
Das 900 m² große Grundstück ist liebevoll angelegt und besticht durch einen sehr gepflegten Garten, der zum Entspannen, Spielen und Gestalten einlädt. Auch die Außenanlagen, wie die 2019 erneuerte Granit-Treppenanlage zur Terrasse, unterstützen den einladenden Gesamteindruck.
Zahlreiche Modernisierungen sorgen für zeitgemäßen Komfort und geringe Folgekosten: neue Fenster (2006), eine moderne Gas-Brennwertheizung (2019), eine umfassende Dachsanierung inklusive neuer Dachflächenfenster (2010) sowie die Sanierung des Duschbads im Dachgeschoss (2015). Das Wohnzimmer ist zudem mit einer hochwertigen weißen Spanndecke ausgestattet.
Dieses Haus bietet Ihnen sofortigen Einzugskomfort, viel Platz für individuelle Wohnideen und eine idyllische Wohnlage – ideal für Familien oder Paare, die Wert auf Qualität und ein gepflegtes Zuhause legen.
– sehr schöne Lage
– zwei Bäder
– Doppelcarport
– großes Gartenhaus
, Vollkeller
– Einbaucküche
– neuwertige Heizung
– immer modernisiert
uvm.
| Angebots-ID: | LI898 |
| Kaufpreis: | 385.000,00 EUR |
| Zimmer: | 4 |
| Schlafzimmer: | 3 |
| Badezimmer: | 2 |
| Wohnfläche: | 117,00 m² |
| Grundstücksfläche: | 900,00 m² |
| Nutzfläche: | 72,00 m² |
| Gesamtfläche: | 189,00 m² |
| Baujahr: | 1973 |
| Objektzustand: | gepflegt |
| Heizungsart: | Zentralheizung |
| Befeuerungsart: | Gas |
| Wert des Endenergiebedarfs: | 170,10 kWh/(m²*a) |
| Art des Energieausweises: | Bedarf |
| Energieeffizienzklasse: | F |
| Sonstige Angaben: | Es liegt ein Energiebedarfsausweis vor. Dieser ist gültig bis 12.5.2029. Endenergiebedarf beträgt 170.10 kwh/(m²*a). Wesentlicher Energieträger der Heizung ist Gas. Das Baujahr des Objekts lt. Energieausweis ist 2019. Die Energieeffizienzklasse ist F. Anfragen an: Laage Immobilien Buxtehuderstrasse 15 21641 Apensen Telefon: 04167-6997506 E-Mail:anfragen@laage-immobilien.de Web: www.laage-immobilien.de Vertretungsberechtigter: Yvonne Laage Berufsaufsichtsbehörde : IHK Stade Am Schäferstieg 2 ,21680 Stade Handelsregister: Stade Ust.-IdNr: DE217276976 Hinweis: Wir weisen höflich darauf hin, dass die hier gemachten Angaben ausschließlich auf den uns vom Verkäufer übermittelten Unterlagen und Daten basieren. Für die Richtigkeit und Vollständigkeit können wir keine Haftung übernehmen. Dieses Exposé ist nur für Sie persönlich bestimmt. Eine Weitergabe an Dritte ist an unsere ausdrückliche Zustimmung gebunden und unterbindet nicht unserem Provisionsanspruch bei Zustandekommen eines Vertrages. Alle Gespräche sind über unser Büro zuführen. Bei Zuwiderhandlung behalten wir uns Schadenersatz bis zur Höhe der Provisionsansprüche ausdrücklich vor. Zwischenverkauf ist nicht ausgeschlossen. Wir sind als Nachweis- und Vermittlungsmakler tätig und berechtigt auch für den anderen Vertragspartner tätig zu werden. Auftraggeber ist sowohl der ein Objekt Anbietende, als auch der ein Objekt Suchende Interessent. |
| Käuferprovision: | 3.5% incl. MwSt. |
| Anzahl Carport-Stellplätze: | 2 |
| Terrassen: | 2 |
Die genaue Adresse teilen wir Ihnen auf Anfrage gerne mit.
21644 Sauensiek / Revenahe
Deutschland















