VERKAUFT°°° Beste Lage – schönes Grundstück – solides Haus°°°
395.000,00 EUR Buxtehude | Einfamilienhaus | 92,00m² | 4 ZimmerEin Ort mit Charme, Potenzial und Raum für Ihre Wohnträume
Willkommen in diesem bezaubernden Einfamilienhaus aus dem Jahr 1962 – einem wahren Rohdiamanten mit viel Charakter! Auf ca. 92 m² Wohnfläche und einem beeindruckenden 1.000 m² großen Grundstück eröffnen sich Ihnen zahlreiche Möglichkeiten, Ihre ganz persönlichen Wohnideen zu verwirklichen.
Mit insgesamt 4,5 Zimmern und einem voll unterkellerten Bereich bietet das Haus ausreichend Platz für eine kleine Familie, für Paare mit Platzbedarf oder kreative Köpfe mit großen Plänen.
Bereits der Eingangsbereich empfängt Sie mit einer einladenden Atmosphäre und führt Sie weiter in den hellen Wohnraum, der durch große Fenster mit natürlichem Licht durchflutet wird. Von hier aus gelangen Sie direkt auf die Terrasse – der perfekte Ort für entspannte Stunden im Grünen. Die Küche verfügt über eine praktische Größe und birgt zusätzliches Potenzial: Ein möglicher Durchbruch zum Wohnbereich könnte hier für noch mehr Offenheit und Wohnkomfort sorgen.
Ein weiteres, geräumiges Zimmer im Erdgeschoss lässt sich flexibel als Gästezimmer, Büro oder zweites Wohnzimmer nutzen. Auch das Badezimmer auf dieser Etage stammt aus früheren Zeiten und wartet darauf, in neuem Glanz zu erstrahlen.
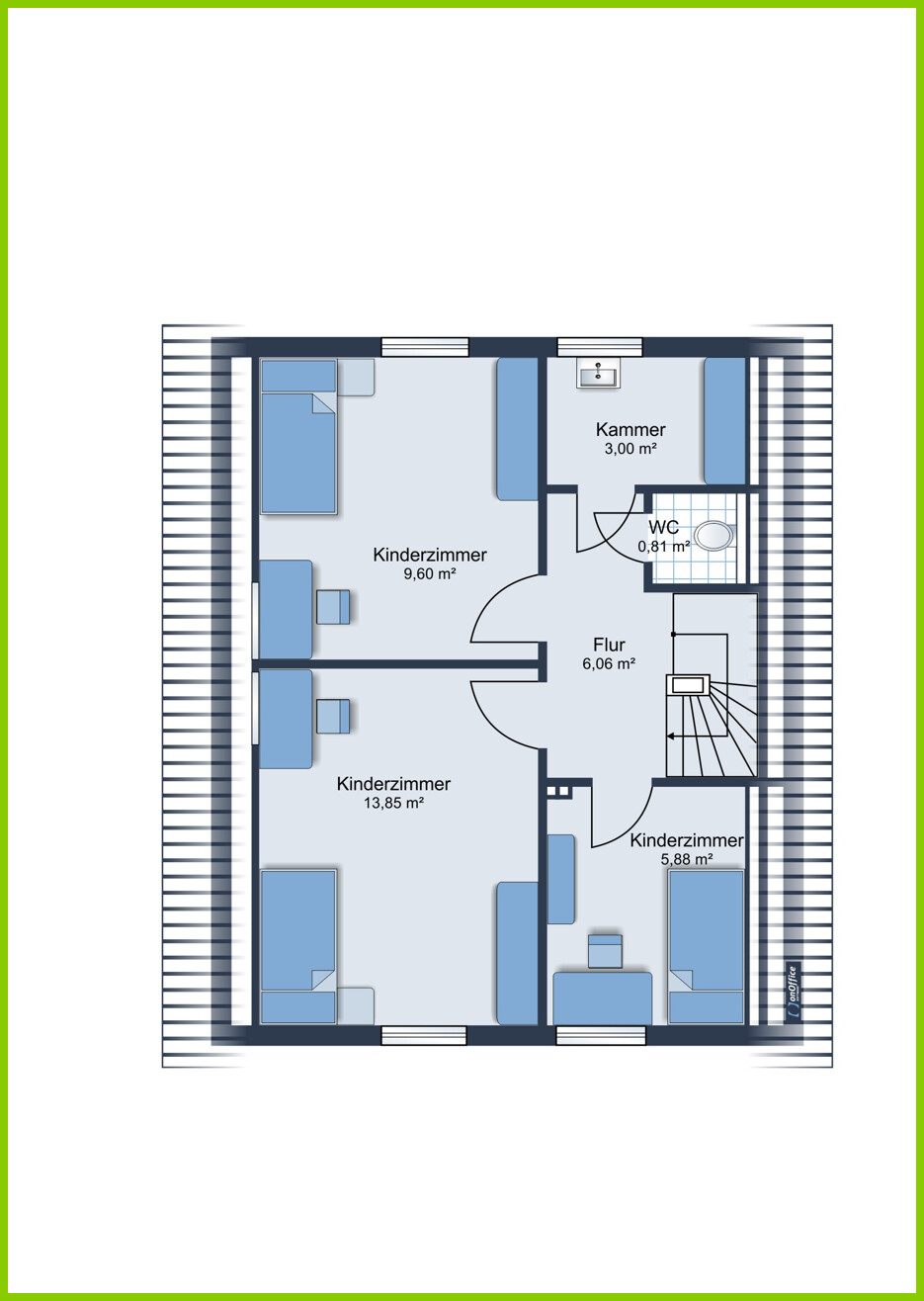
Im Dachgeschoss befinden sich drei weitere gemütliche Zimmer, die sich ideal als Kinderzimmer, Arbeitsräume oder kreative Rückzugsorte eignen. Eine kleine Kammer sorgt für zusätzlichen Stauraum. Derzeit befindet sich hier lediglich ein WC – doch der Dachbereich bietet genügend Platz für ein modernes Bad ganz nach Ihren Vorstellungen.
Besonders hervorzuheben ist die solide Bausubstanz des Hauses – eine wertvolle Basis für individuelle Sanierungs- und Gestaltungsideen. Ob modernisieren, erweitern oder sogar ein Neubau: Dieses großzügige Grundstück lässt Ihnen alle Möglichkeiten offen. Der Gartenbereich bietet dabei ausreichend Platz für Spiel, Erholung oder neue Bauprojekte.
Nutzen Sie diese einmalige Gelegenheit und verwandeln Sie dieses charmante Stück Erde in Ihre ganz persönliche Wohlfühloase.
Das Haus befindet sich in dem sehr beliebten Stadtteil Eilendorf südlich gelegene Ortschaft von Buxtehude Hier lebt es sich ruhig und dennoch zentral.
Buxtehude ist mit ca. 41.000 Einwohnern die zweitgrößte Stadt im Landkreis Stade in Niedersachen.
Buxtehude liegt direkt am Rand des Alten Landes und ca. 45 km von Hamburg entfernt. Durch seinen S-Bahn-Anschluss ist Hamburg (Hauptbahnhof) bequem in 45 min zu erreichen. Mit dem Auto führt der Weg nach Hamburg entweder über die direkt an Buxtehude grenzende B 73 oder über die A 1, deren nächste Auffahrt sich im 13 km entfernten Rade befindet.
Bildungstechnisch ist Buxtehude mit zwei allgemeinbildenden Gymnasien, einer Berufsbildenden Schule, mehreren Grundschulen, je einer Haupt- und Realschulen, einer Integrierten Gesamtschule, einer Förderschule und einer Hochschule ausgestattet. Auch Kindergärten sind ausreichend vorhanden.
Für den täglichen Bedarf sind diverse Geschäfte vor Ort. Allerdings bietet Buxtehude auch eine Fußgängerzone in der Altstadt mit Textilgeschäften, Apotheken, Ärzten, Optikern und vielem mehr sowie ein Kino, ein Hallen- und ein Freibad.
– Vollkeller
– Traumhaftes Grundstück
– sanierungsbedürftig aber solide
– Garage
– mehrere genehmigte Nebengebäude
– sonnig und ruhig
| Angebots-ID: | LI889 |
| Kaufpreis: | 395.000,00 EUR |
| Zimmer: | 4 |
| Schlafzimmer: | 3 |
| Badezimmer: | 1 |
| Wohnfläche: | 92,00 m² |
| Grundstücksfläche: | 1.000,00 m² |
| Nutzfläche: | 53,00 m² |
| Gesamtfläche: | 145,00 m² |
| Baujahr: | 1962 |
| Objektzustand: | sanierungsbedürftig |
| Heizungsart: | Zentralheizung |
| Befeuerungsart: | Öl |
| Wert des Endenergiebedarfs: | 226,00 kWh/(m²*a) |
| Art des Energieausweises: | Bedarf |
| Energieeffizienzklasse: | G |
| Sonstige Angaben: | Es liegt ein Energiebedarfsausweis vor. Dieser ist gültig bis 24.7.2035. Endenergiebedarf beträgt 226.00 kwh/(m²*a). Wesentlicher Energieträger der Heizung ist Öl. Das Baujahr des Objekts lt. Energieausweis ist 2002. Die Energieeffizienzklasse ist G. Anfragen an: Laage Immobilien Buxtehuder Straße 15 21641 Apensen Telefon: 04167-6997506 Fax: 040-999 999 769 9 E-Mail:laage@laage-immobilien.de Web: www.laage-immobilien.de Vertretungsberechtigter: Yvonne Laage Berufsaufsichtsbehörde : IHK Stade Am Schäferstieg 2 ,21680 Stade Handelsregister: Stade Ust.-IdNr: DE217276976 Hinweis: Wir weisen höflich darauf hin, dass die hier gemachten Angaben ausschließlich auf den uns vom Verkäufer übermittelten Unterlagen und Daten basieren. Für die Richtigkeit und Vollständigkeit können wir keine Haftung übernehmen. Dieses Exposé ist nur für Sie persönlich bestimmt. Eine Weitergabe an Dritte ist an unsere ausdrückliche Zustimmung gebunden und unterbindet nicht unserem Provisionsanspruch bei Zustandekommen eines Vertrages. Alle Gespräche sind über unser Büro zuführen. Bei Zuwiderhandlung behalten wir uns Schadenersatz bis zur Höhe der Provisionsansprüche ausdrücklich vor. Zwischenverkauf ist nicht ausgeschlossen. Wir sind als Nachweis- und Vermittlungsmakler tätig und berechtigt auch für den anderen Vertragspartner tätig zu werden. Auftraggeber ist sowohl der ein Objekt Anbietende, als auch der ein Objekt Suchende Interessent. |
| Käuferprovision: | 3,5 inkl, MwSt. |
| Anzahl Außenstellplätze: | 2 |
| Anzahl Garagenstellplätze: | 2 |
| Stellplätze: | 2 |
| Terrassen: | 1 |
| Dachform: | Satteldach |
Die genaue Adresse teilen wir Ihnen auf Anfrage gerne mit.
21614 Buxtehude
Deutschland









































